武蔵野市賃貸マンション フローリング貼り替え工事

武蔵野市の賃貸マンションのオーナー様より内装工事を請け負いました。

 

今回の工事内容は、フローリングの貼り替えです。

貼り替え部分は、廊下・LDK・洋室・和室です。

 

それでは施工写真を紹介していきます。

施工前
リビング 洋室

上の写真はリビングと洋室の施工前の写真です。

 

続きまして、施工中の写真を紹介します。

施工中
リビング リビング

上の写真はリビングの既存フローリングをはがした後の写真です。

左側の写真は隣り合った洋室から、右側はリビングから撮ってます。

既存のフローリングをはがすと、コンクリートの下地が見えてきました。

 

続きまして、施工後の写真を紹介します。

施工後
廊下 リビング 洋室 元和室

フローリングを貼り替えただけで、見違えるほどお部屋の雰囲気が明るくなりました。

 

今回使用したフローリングは

朝日ウッドテックの「ネダレス95ニューフォルテ」シリーズのシカモア柄のフローリングです。

 

商品情報はこちらのメーカーのウエブカタログP.64と65をご参照下さい。

 

この度はセイコーフロアのリフォームサービスをご利用頂き、誠にありがとうございました。

またのご用命をお待ちしております。

今回は、練馬区にある戸建てのオーナー様より床・クロスの貼り替え工事を請負いました。

それでは、施工写真を紹介します。

戸建て フローリング貼り替え 施工例

写真は3枚です。

既存のフローリングを剥がすと、根太が見えてきました(写真2)

1枚ずつ丁寧にフローリングを貼っていき、写真3が施工後の写真になります。

ホワイト系のフローリングに貼り替え、お部屋が明るくなっただけでなく、

お部屋が広がった感じもします。

また、こちらのお部屋はクロスも貼り替えました。

この度はセイコーフロアのリフォームサービスをご利用頂き、誠にありがとうございます。

またのご用命をお待ちしております。

熊谷市の賃貸マンションのオーナー様より、リフォーム工事を請負いました。

工事箇所は、廊下・リビング・洋室で、工事内容は、フローリング貼りと巾木交換、そして、キッチン交換・ビルトインガスコンロの設置です。

先ずは、廊下の施工例から紹介します。

玄関・廊下 施工例

玄関・廊下部分は、フローリング貼りの他に、巾木と玄関框を取り付けました。

続きまして、リビングの施工例を紹介します。

リビング キッチン交換 施工例

お選び頂いた新しいキッチンは、機能的でとても使いやすく、

また見た目も鮮やかなお色で、とても素敵ですね。

また、新しいビルトインガスコンロも設置しました。

リビング 床 施工例

リビングはキッチンの交換以外に、フローリング貼りと巾木取り付けも行いました。

リビングの広さは、約13帖です。

続きまして、洋室の施工例を紹介します。

洋室 施工例

洋室はフローリング貼りと巾木の交換を行いました。

床の貼り替えだけで、ここまでお部屋が明るく生まれ変ります!

ここまでお部屋の雰囲気が明るくなり、お客様も大変喜んで下さいました。

この度はセイコーフロアのリフォームサービスをご利用頂きまして、誠にありがとうございます。

またのご用命をお待ちしております。

春日部市の賃貸マンションのオーナー様より、リフォーム工事を請負いました。

リフォーム箇所は、玄関・LDK、洋室、和室、あと、浴室で、

リフォーム内容は、フローリングとクロスの貼り替えに、キッチンの交換、防水パンの設置、浴室のシャワー水洗の交換です。

先ずは、玄関・LDK部分の施工例を紹介します。

玄関 フローリング貼り 施工例

玄関部分は、フローリングとクロスの貼り替えのほかに、玄関框と、巾木の交換も行いました。

続きまして、LDK部分の施工例を紹介します。

キッチン交換 施工例

新しいキッチンは普及品のもので、シンプルながらも使い勝手がいいものです。

また、お選び頂いた色柄は、貼り替えた床と壁に合わせて清潔感の感じられるものですね。

リビング 施工例

リビングは約12帖です。

フローリングとクロスだけでなく、巾木も交換しました。

続きまして、洋室の施工写真を紹介します。

洋室 施工例

こちらのお部屋は6.5帖です。

フローリングとクロスの貼り替えに、あと巾木を交換いたしました。

見違えるほど明るくなりましたね。

続きまして、和室の施工写真を紹介します。

和室 施工例

施工写真は6枚で、1〜3までが施工前、4〜6が施工後の写真です。

和室は、畳からフローリングへの張替えとクロスの張替えだけでなく、新しいお部屋に合わせて

出入り口と押入れの戸襖も交換致しました。

見違えるように明るくなりました。

続いて、洗濯機置き場と浴室(シャワー水洗交換)の施工写真を紹介します。

洗濯機置き場と浴室(シャワー水洗交換) 施工例

こちらのマンションは賃貸用のマンションで、なるべく格安で施工してもらいたいとのご要望により、

全体的に普及品の商品をご提案させて頂きました。

格安ながらも清潔感の感じられる商品に、オーナー様も大変ご満足頂けました。

また、貼り替えに使用したフローリングは白系のフローリングで、

白系はお部屋が広がるような感じがするだけでなく、

傷が目立ちにくい為とても人気のある色柄です。

この度はセイコーフロアのリフォームサービスをご利用頂きまして、誠にありがとうございます。

またのご用命をお待ちしております。

越谷市の賃貸マンションのオーナー様より、フローリング貼り替えの工事を請負いました。

施工写真を紹介します。

フローリングからフローリングへの貼り替え

入居されていた方の退去に伴い、フローリングの貼り替えをご依頼されました。

お部屋の広さは約5帖程です。

賃貸用のマンションの為、格安の一般的なフローリングをご要望されまして、下記のキャンペーン商品に貼り替えました。

 大建工業 オトユカファインⅡF

色:ファインナチュラル

用途:賃貸物件用 直張りフローリング

通常8000円→5000円/㎡
(既存床のはがし代は別途)

通常よりも安く施工することができ、大変喜んで下さいました。

この度はセイコーフロアのリフォームサービスをご利用下さいまして、誠にありがとうございました。

またのご用命をお待ちしております。

マンションのオーナー様より、台東区の賃貸マンションのリフォーム工事を請負いました。

工事内容は、床(フローリングとクッションフロアー)・クロスの貼り替え、お部屋の統合、キッチンの交換、建具工事とウォシュレトの取り付けです。

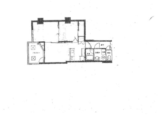
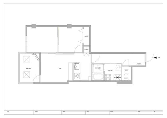
先ずは図面を紹介します

施工前 施工後

2部屋あった和室を1つの洋室に変えて、リビングにクローゼットを新設しました。

先ずは、玄関の建具工事を紹介します。

玄関 施工例

上記写真にカーソルを合わせると、施工前の写真から施工後の写真後の写真に変わります。

玄関はシューズボックスを交換しました。

続きまして、トイレの施工写真を紹介します。

トイレ 施工例

上記写真にカーソルを合わせると、施工前の写真から施工後の写真後の写真に変わります。

トイレは床(クッションフロアー)・クロスの貼り替えの他に、便座を交換し、ウォシュレットに変えました。

続きまして、洗面所の施工写真です。

洗面所 施工例

上記写真の1〜3までが施工中の写真で、4が施工後の写真です。

洗面所はクッションフロアーを貼り替えました。

続きまして、キッチン交換の施工写真を紹介します。

キッチン交換

上記写真にカーソルを合わせると、施工前の写真から施工後の写真後の写真に変わります。

台所の広さは3帖です。

続きまして、キッチン交換の施工過程の写真を紹介します。

キッチン交換 施工前

元々のキッチンは壁付けタイプでした。

続きまして、キッチン交換の施工中の写真を紹介します。

キッチン交換 施工中

以前のキッチンは台所の壁付けでしたが、リビングとの対面に向きを変えて取り付けました。

最後に、キッチン交換の施工後の写真です。

キッチン交換 施工後

完成です!!

新しいキッチンの色は、新しい床とクロスと合わせました。

新しくしたキッチンはとても温かみのある色ですね。

続きまして、リビングの施工写真を紹介します。

リビング 施工例

上記写真にカーソルを合わせると、施工前の写真から施工後の写真後の写真に変わります。

リビングの広さは9帖です。

床・クロスの貼り替えと、クローゼットの新設をしました。

リビングの施工過程の写真を紹介します。

リビング 施工中

写真は3枚です。

1枚目の写真は施工前、2枚目・3枚目は、既存のフローリングを剥がして、新しいフローリングを一枚一枚貼っている途中の写真です。

続きまして、リビング施工後の写真を紹介します。

リビング 施工後

完成です!!

 

写真は4枚です。

 

2枚目と3枚目は、お部屋を統合した元和室への扉の写真で、その扉も交換しました。
4枚目の写真は、リビングに新設したクローゼットです。


さらに、リビングのベランダ側にありましたカウンターもリフォームしました。

写真は3枚です。

リビング カウンター施工写真

続きまして、2部屋ありました和室の施工写真を紹介します。

和室 施工例

7.5畳と4.5畳の和室をひとつの洋室に変えて、押入れをクローゼットに変えました。

続きまして、和室の施工過程の写真を紹介します。

和室 施工中

写真は8つあります。

1枚目と2枚目は2つの部屋の壁を取り払って、ひとつの部屋にしている写真で、2枚目から5枚目が天井の改修工事をしている写真で、6枚目から8枚目までがクローゼットの新設工事の過程の写真です。

和室の施工後の写真を紹介します。

和室 施工後

完成です!!

 
洋室に替えて、お部屋が明るくなっただけでなく、押入れが機能的なクローゼットになり、お客様も大変喜んで下さいました。
 

今回このマンションのフローリングの貼り替えに使ったフローリングは全て、当社のキャンペーンでご紹介しています、下記のフローリングです。

大建工業 オトユカファインⅡF

色:ファインナチュラル

用途:賃貸物件用 直張りフローリング

通常8000円→5000円/㎡
(既存床のはがし代は別途)


この度はセイコーフロアのリフォームサービスをご利用頂き、誠にありがとうございました。
またのご用命をお待ちしております。

狭山台にある賃貸用マンションの3部屋分のリフォーム工事を請負いました。

工事内容は3部屋とも同じ内容で、

お部屋の統合して床とクロスを貼り替えて、押し入れをクローゼットへの変更、

そして室内に洗濯機置き場と洗面化粧台を新設と、それに併せて給排水設備も新設・・・です。

先ずは施工前の写真を紹介します。

当マンションは3部屋とも同じ造りになっていまして、玄関から入ると直ぐにDKがあり、その奥に洋室、さらに奥に和室となっていました。

施工前 全体写真

上記画像にカーソルを持っていきますと、画像が変わります。

カーソルを持っていく前の画像は洋室から玄関に向けて撮った写真で、

カーソルを持っていくと、一番奥の和室から玄関に向けて撮った写真に切り替わります。

続いて、お部屋の真ん中にありました洋室の施工前の写真を紹介します。

施工前 洋室

上記お部屋の既存の床はカーペットでしたが、別のお部屋の既存の床はフローリングのところもありました。

ここでは、カーペットからフローリングへ切り替えた写真を紹介します。

続いて、お部屋の一番奥にあります和室の施工前の写真を紹介します。

施工前 和室

以上が施工前の写真です。

今度は施工後の写真を紹介します。

施工後 その1
施工後 その2

施工後の写真はそれぞれ3枚ずつあります。

3部屋中、二部屋分は床を黒いフローリング(施工後その1を参照)へ、一部屋は茶色のフローリング(施工後その2を参照)に貼替えました。黒のフローリングは高級感を漂わせ、茶色は温かみのある雰囲気を作り出してます。

また、洋室と和室を統合してひとつの広いお部屋にし、床とクロスを貼り替えて、さらに押入れをオシャレなウクローゼットに変えました。

さらに今回のリフォーム工事では、洗面台の新設と、今まで洗濯機置き場は外のベランダのみでしたが、

室内にも新設しました。

洗面台・洗濯機置き場 新設工事

上の画像は、カーソルを置く前の写真は設置前の写真で、カーソルを置くと設置後の写真に切り替わります。

また、設置前と設置後の写真はそれぞれ別のお部屋のものですが、左右が反転しているだけでお部屋の構造が同じ為、どのお部屋も同じ位置に洗面台と洗濯機置き場を設置しております。

また、洗面台と洗濯機置き場の新設に伴い、給排水設備も新設しました。

こちらのマンションは3部屋とも賃貸用マンションで、当工事をご依頼下さったお客様もご覧の仕上がりに大変満足して頂けました。

この度はセイコーフロアのリフォームサービスをご利用頂きまして、誠にありがとうございます。

またのご用命を、お待ちしております。

マンションのオーナー様より、市川市の賃貸マンションのフローリング張替え工事を請け負いました。

工事箇所は玄関・廊下、DK、洋間です。

全て古いフローリングを同じ色彩の新しいフローリングに張り替えました。

既存の框や見切り等の高さが現状のフローリングよりも7〜8mm高かった為「増し貼り工法」を用い、それにより解体処分費が浮きました。

巾木も全て交換しました。

玄関・廊下の施工例
DKの施工例
洋室の施工例

玄関・廊下の施工例と洋室の施工例の写真は、

カーソルを置く前の写真は設置前の写真で、

カーソルを置くと設置後の写真に切り替わります。

ご覧の通り、床の張替えだけでも見違えるように明るくなりました。

巾木は新しいフローリングの色に合わせて白のものと交換しました。

この度はセイコーフロアのリフォームサービスをご利用頂きまして、誠にありがとうございます。
またのご用命、お待ちしております!!

さいたま市大宮区の賃貸アパートのフローリング張替え工事を請け負いました。

畳からフローリングへの張替え工事です。


1畳から張替え.JPG
2畳から張替え.JPG
3畳から張替え.JPG
4畳から張替え.JPG
5畳から張替え.JPG

マンションのオーナー様より総合リフォームを請け負いました。

54㎡、築26年の賃貸向けのマンションです。

当社独自のルートで仕入れた商品・設備により、お安い施工費で、お客様が想像していた以上に新しくお部屋が生まれ変わって、お客様も大変喜んでいただけました。

①施工前キッチン  ②施工前LDK 



写真からではわかりずらいですが、写真の奥はキッチンとそのまま繋がっています。

 ①施工後キッチン
②施工後LDK キッチン側
③施工後LDK ベランダ側
④施工後LDK ベランダ側 


LDKには新しいクロスを貼り、クロスの色彩に併せてフローリングも明るい色彩のものに張り替えて、LDK全体が見違えるように明るくなりました。

またLDKは23㎡でとても広い為、ベランダ側に造作壁を設けた事で新たに1つお部屋ができました。

①施工前 洗面所
②施工後 洗面台  ③施工後 洗濯機置き場


脱衣所には新しい洗面台と洗濯機置き場を設置しました。洗面台は白を基調とした清潔感のある商品で、お客様も大変喜んでいただけました。


①施工前 和室
②施工後 和室
③施工後 和室



こちらの画像はわかりずらく恐縮なのですが、和室の畳をフローリングに張り替えて、新しいクロスを貼り、押入れだった収納もクローゼットに変えて、部屋全体の雰囲気が明るくなり、また機能的なお部屋に生まれ変わりました。


①トイレ 施工前
②トイレ 施工後


施工前のトイレは洗浄便座なしのタイプでしたが、ウォシュレット一体型便座に取替え、また使い勝手を考えて取り付け向きも変更しました。

お問合せ・ご相談はこちら

お問い合わせ.jpeg
受付時間
9:00~18:00
定休日
土日祝祭日

ご不明点などございましたら、
お電話もしくはお問合せフォームよりお気軽にご相談ください。

お電話でのお問合せはこちら

0120-269-171

担当:平山

高品質で低料金の住宅・マンション総合リフォームなら、さいたま市の総合リフォーム会社・埼玉格安住宅リフォームセンターへお任せください。
キッチン(台所)、トイレ、浴室(風呂、バス)などの水周りのリフォームから、床、壁の下地工事まで、あなたの住まいをリフォーム。

専門職人によるスピーディーかつ格安費用の施工をお約束いたします。
ご相談は無料ですので、お気軽にお問合せください。

対応エリア
埼玉県、東京都、千葉県、神奈川県など
パソコン|モバイル
ページトップに戻る